| オススメポイント | 夷川通面す☆駅近徒歩約7分の収益物件♪ | 
|---|---|
| 物件番号 | 534 | 
| 物件種別 | 売買・事業用 | 
| 販売価格 | 25,000万円 | 
| 所在地 | 京都市中京区夷川通麩屋町西入木屋町 | 
| 築年月日 | 昭和55年12月 | 
| 構造 | 鉄骨造陸屋根4階建 | 
| 交通機関 | 地下鉄東西線 | 
| 最寄駅 | 京都市役所前駅 徒歩7分 | 
| 土地面積 | 168.02㎡ | 
| 土地面積(坪) | 50.82坪 | 
| 建物面積(専有面積) | 496.36㎡ | 
| 取引態様 | 仲介 | 
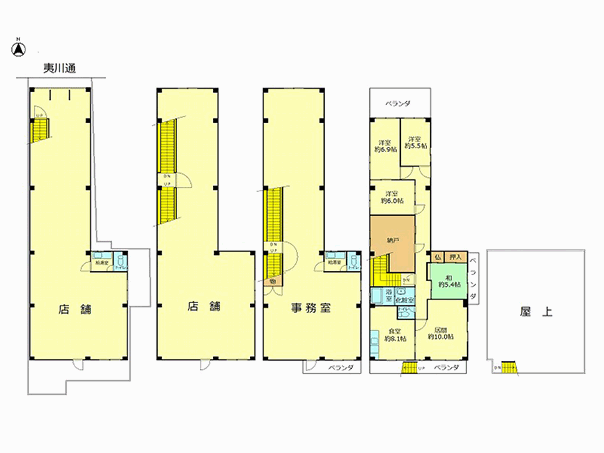
| 備考 | ※建物 1階:128.62㎡(38.9坪)食料品店賃貸中 2階:122.02㎡(36.91坪)居酒屋賃貸中 3階:129.1㎡(39.05坪)美容室賃貸中 4階:116.62㎡(35.27坪)所有者使用中 延面積:496.36㎡(150.14坪) ※預り保証金は買主に手渡します。 ※駐車場:無し ※間口:[北側]約5m(約2.75間) ※市バス「裁判所前」停 徒歩約5分 |